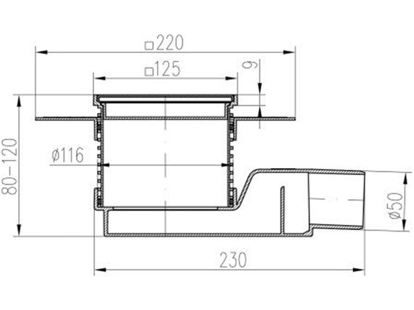
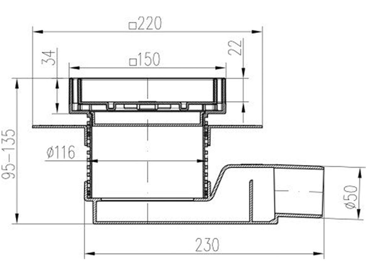
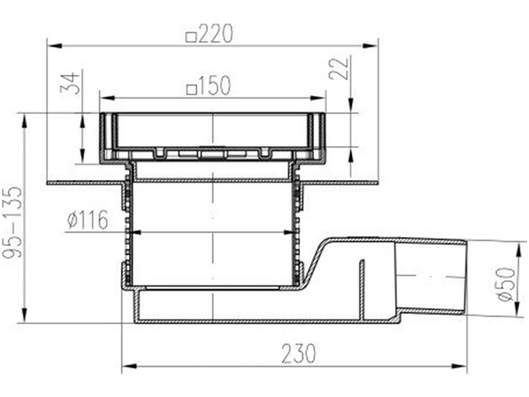
Snížená podlahová vpusť s bočním sifonem, límcem a nízkou stavební výškou. Určena pro rekonstrukci koupelen. Vyrobeno z PP a nerezové oceli. Volitelný design mřížky s možností pro zadláždění, lze zabudovat pro boční odtok D 50.
Podrobné info
Instalace |
|
| Kotvení | betonáž |
|---|---|
| Připojení spodní | ne |
| Připojení boční | D50 |
Zatížení |
|
| Třída zatížení | K3 |
| Nosnost | 0,3 t |
| Norma | EN 1253 |
Rošt |
|
| Otvory | ano |
| Uchycení | bílá |
| Antikorozní ochrana | nerez |
| Materiál roštu | ocel / polypropylen |
| Barva | stříbrná |
| Tvar | hranatý |
| Rozměry | 125 × 125 mm / 150 × 150 mm |
Vpusť |
|
| Materiál vpusti | polypropylen |
| Barva | šedá |
| Tvar | kruhový |
| Výška | 80 – 120 / 85 – 135 / 95 – 135 mm |
Parametry |
|
| Původ | Vyrobeno v ČR |
| Záruka | 2 roky |
| Značka | Chuděj |
| Parametry produktu: | |
Chuděj PVBU 50 je podlahová vpusť se sníženým bočním sifonem D 50 a s límcem. Výhodou je nízká stavební výška vhodná pro rekonstrukci koupelen. Třída zatížení K3 s nosností až 300 kg, tepelná odolnost do 90 °C, zkoušeno dle normy EN 1253.
Volitelný výběr mřížky umožňuje volbu ze šesti různých provedení designu. Stříbrná mřížka je vyrobena z nerezové oceli DIN 1.4301 nebo z plastu, které zaručují odolnost vůči korozi, okolnímu namáhání a rozdílným teplotám vody. Nerezová mřížka Ceramics slouží pro možnost zadláždění.
Obsahuje průtok 34 - 44 l / min který zabraňuje zpětnému šíření zápachu z kanalizace. Tělo vpusti je vyrobeno z polypropylenu s vybavením o límec, který slouží pro snadnou montáž hydroizolačních materiálů. Výšku vpusti lze uživatelsky upravit dle potřeb pomocí pilky.
Náhradní nástavec pro podlahové vpusti Chuděj v celoplastovém provedení nebo s nerezovým rámečkem o rozměru 125 x 125 mm.
Kulatý nástavec pro podlahové vpusti Chuděj v celoplastovém provedení pro nerezovou mřížku o průměru 137 mm
Náhradní nástavec pro podlahové vpusti Chuděj v nerezovém provedení o rozměru 150 x 150 mm.
Náhradní nástavec s nerezovým rámečkem a možností volby s celonerezovým povrchem nebo s možností pro zadláždění. Rozměry činí 125 x 125 mm
Náhradní nástavec s nerezovým rámečkem a možností volby s celonerezovým povrchem nebo s možností pro zadláždění. Rozměry činí 150 x 150 mm
Náhradní podstavec pro nástavec 125 s možností volby s celonerezovým povrchem nebo s možností pro zadláždění. Rozměr činí 125 x 125 mm.
Náhradní podstavec pro nástavec 150 s možností volby s celonerezovým povrchem nebo s možností pro zadláždění. Rozměr činí 150 x 150 mm.
Volitelná mřížka 116 x 116 mm pro podlahové vpusti Chuděj z nerezové oceli DIN 1.4301 o síle 1,5 mm pro nástavec 125 × 125 mm.
Kulatá mřížka pro kanalizační a podlahové vpusti Chuděj ze nerezové oceli se třídou zatížení K3.
Plastové sítko na zachytávání nečistot podlahových vpustí Chuděj s nástavcem 125 x 125 a 150 x 150 mm.
Plastový límec včetně těsnícího kroužku, který slouží pro snadnou montáž hydroizolačních materiálů. Rozměry činí 220 x 220 mm, průměr připojení D 115.
Zajištění límce pro izolaci, které se umisťuje mezi límec a korpus vpusti.
Těsnící o-kroužek pro sprchové žlaby z plastu a podlahové vpusti Chuděj. Rozměry činí 107 x 3,5 mm.





















Hledáte příslušenství k produktům ve vašem košíku?
Je vám k dispozici v této nabídce.
Foto - Vpusť Chuděj SS 50
Foto - Vpusť Chuděj SS 50
Foto - Vpusť Chuděj SS 50
Foto - Vpusť Chuděj SS 50
Foto - Vpusť Chuděj SS 50
Foto - Vpusť Chuděj SS 50
Foto - Vpusť Chuděj SS 50
Foto - Vpusť Chuděj SS 50
Foto - Vpusť Chuděj SS 50
Foto - Vpusť Chuděj SS 50
Foto - Vpusť Chuděj SS 50
Foto - Vpusť Chuděj SS 50
Foto - Vpusť Chuděj SS 50
Foto - Vpusť Chuděj SS 50
Foto - Vpusť Chuděj SS 50
Foto - Vpusť Chuděj SS 50
Foto - Vpusť Chuděj SS 50
Foto - Vpusť Chuděj SS 50
Foto - Vpusť Chuděj SS 50
Foto - Vpusť Chuděj SS 50
Foto - Vpusť Chuděj SS 50
Diskuze
Položit otázkuSkrýt