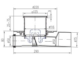
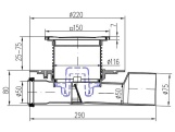
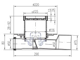
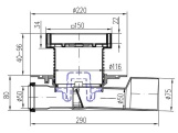
Univerzální konfigurovatelná vpusť s redukcí, průběžným napojením a dvojitým protizápachovým systémem pro využití i do exteriéru. Vyrobeno z PP, PS a nerezové oceli, volitelný design mřížky s možností pro zadláždění, volba příruby, lze zabudovat pro boční odtok D 50 / D 75.
Podrobné infoNáhradní nástavec pro podlahové vpusti Chuděj v celoplastovém provedení nebo s nerezovým rámečkem o rozměru 125 x 125 mm.
Kulatý nástavec pro podlahové vpusti Chuděj v celoplastovém provedení pro nerezovou mřížku o průměru 137 mm
Náhradní nástavec pro podlahové vpusti Chuděj v nerezovém provedení o rozměru 150 x 150 mm.
Náhradní nástavec s nerezovým rámečkem a možností volby s celonerezovým povrchem nebo s možností pro zadláždění. Rozměry činí 125 x 125 mm
Náhradní nástavec s nerezovým rámečkem a možností volby s celonerezovým povrchem nebo s možností pro zadláždění. Rozměry činí 150 x 150 mm
Náhradní podstavec pro nástavec 125 s možností volby s celonerezovým povrchem nebo s možností pro zadláždění. Rozměr činí 125 x 125 mm.
Náhradní podstavec pro nástavec 150 s možností volby s celonerezovým povrchem nebo s možností pro zadláždění. Rozměr činí 150 x 150 mm.
Volitelná mřížka 116 x 116 mm pro podlahové vpusti Chuděj z nerezové oceli DIN 1.4301 o síle 1,5 mm pro nástavec 125 × 125 mm.
Kulatá mřížka pro kanalizační a podlahové vpusti Chuděj ze nerezové oceli se třídou zatížení K3.
Plastové sítko na zachytávání nečistot podlahových vpustí Chuděj s nástavcem 125 x 125 a 150 x 150 mm.
Protizápachová vodní hladina zabraňuje zpětnému šíření zápachu z kanalizace uvnitř podlahových vpustí Chuděj PVP a PVBU 50 / 75.
Protizápachová suchá klapka zabraňuje zpětnému šíření zápachu z kanalizace uvnitř podlahových vpustí Chuděj.
Nerezová příruba a 5 ks šroubů pro snadnou montáž hydroizolačních materiálů podlahových vpustí Chuděj.
Plastový límec včetně těsnícího kroužku, který slouží pro snadnou montáž hydroizolačních materiálů. Rozměry činí 220 x 220 mm, průměr připojení D 115.
Zajištění límce pro izolaci, které se umisťuje mezi límec a korpus vpusti.
Těsnící o-kroužek pro sprchové žlaby z plastu a podlahové vpusti Chuděj. Rozměry činí 107 x 3,5 mm.








































Hľadáte príslušenstvo k tovaru vo vašom košíku?
Je vám k dispozícii v tejto ponuke.
Foto - Chuděj PVP 50/75 (univerzální, průběžná)
Foto - Chuděj PVP 50/75 (univerzální, průběžná)
Foto - Chuděj PVP 50/75 (univerzální, průběžná)
Foto - Chuděj PVP 50/75 (univerzální, průběžná)
Foto - Chuděj PVP 50/75 (univerzální, průběžná)
Foto - Chuděj PVP 50/75 (univerzální, průběžná)
Foto - Chuděj PVP 50/75 (univerzální, průběžná)
Foto - Chuděj PVP 50/75 (univerzální, průběžná)
Foto - Chuděj PVP 50/75 (univerzální, průběžná)
Foto - Chuděj PVP 50/75 (univerzální, průběžná)
Foto - Chuděj PVP 50/75 (univerzální, průběžná)
Foto - Chuděj PVP 50/75 (univerzální, průběžná)
Foto - Chuděj PVP 50/75 (univerzální, průběžná)
Foto - Chuděj PVP 50/75 (univerzální, průběžná)
Foto - Chuděj PVP 50/75 (univerzální, průběžná)
Foto - Chuděj PVP 50/75 (univerzální, průběžná)
Foto - Chuděj PVP 50/75 (univerzální, průběžná)
Foto - Chuděj PVP 50/75 (univerzální, průběžná)
Foto - Chuděj PVP 50/75 (univerzální, průběžná)
Foto - Chuděj PVP 50/75 (univerzální, průběžná)
Foto - Chuděj PVP 50/75 (univerzální, průběžná)
Foto - Chuděj PVP 50/75 (univerzální, průběžná)
Foto - Chuděj PVP 50/75 (univerzální, průběžná)
Foto - Chuděj PVP 50/75 (univerzální, průběžná)
Foto - Chuděj PVP 50/75 (univerzální, průběžná)
Foto - Chuděj PVP 50/75 (univerzální, průběžná)
Foto - Chuděj PVP 50/75 (univerzální, průběžná)
Foto - Chuděj PVP 50/75 (univerzální, průběžná)
Foto - Chuděj PVP 50/75 (univerzální, průběžná)
Foto - Chuděj PVP 50/75 (univerzální, průběžná)
Foto - Chuděj PVP 50/75 (univerzální, průběžná)
Foto - Chuděj PVP 50/75 (univerzální, průběžná)
Foto - Chuděj PVP 50/75 (univerzální, průběžná)
Foto - Chuděj PVP 50/75 (univerzální, průběžná)
Foto - Chuděj PVP 50/75 (univerzální, průběžná)
Foto - Chuděj PVP 50/75 (univerzální, průběžná)
Foto - Chuděj PVP 50/75 (univerzální, průběžná)
Foto - Chuděj PVP 50/75 (univerzální, průběžná)
Foto - Chuděj PVP 50/75 (univerzální, průběžná)
Foto - Chuděj PVP 50/75 (univerzální, průběžná)
Diskusia
Pridať otázkuSkryť