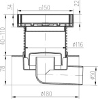
Konfigurovatelná vpusť s límcem pro hydroizolační nebo bitumenové fólie. Obsahuje provedení průtoku vodní hladina, vyrobeno z PP s plastovým nebo nerezovým rámečkem, volitelný design mřížky s možností pro zadláždění, lze zabudovat pro boční odtok D 50.
Podrobné info
Instalace |
|
| Kotvení | betonáž |
|---|---|
| Připojení spodní | ne |
| Připojení boční | D50 |
Zatížení |
|
| Třída zatížení | K3 |
| Nosnost | 0,3 t |
| Norma | EN 1253 |
Rošt |
|
| Otvory | ano |
| Uchycení | šroubové |
| Antikorozní ochrana | nerez |
| Materiál roštu | ocel / polypropylen |
| Barva | stříbrná |
| Tvar | hranatý |
| Rozměry | 125 × 125 mm / 150 × 150 mm |
Vpusť |
|
| Materiál vpusti | polypropylen |
| Barva | šedá, bílá |
| Tvar | kruhový |
| Výška | 105 – 183 / 113 – 169 / 118 – 188 mm |
Parametry |
|
| Původ | Vyrobeno v ČR |
| Záruka | 2 roky |
| Značka | Chuděj |
| Parametry produktu: | |
Chuděj PVB 50 L2 je boční podlahová vpusť určená pro technické prostory nebo koupelny. Límec vpusti lze použít pro napojení hydroizolační nebo bitumenové fólie. Třída zatížení K3, tepelná odolnost do 90 °C, zkoušeno dle normy EN 1253. Lze zabudovat do potrubí D 50.
Volitelný výběr mřížky umožňuje volbu ze šesti různých provedení designu. Stříbrná mřížka je vyrobena z nerezové oceli DIN 1.4301 o síle 1,5 mm nebo z plastu, které zaručují odolnost vůči korozi, okolnímu namáhání a rozdílným teplotám vody. Nerezová mřížka Ceramics slouží pro možnost zadláždění.
Podlahová vpusť PVB 50 L2 obsahuje provedení průtoku vodní hladina (44 - 56 l / min), který zabraňuje zpětnému šíření zápachu z kanalizace. Tělo vpusti je vyrobeno z polypropylenu. Výšku vpusti lze uživatelsky zkrátit pomocí pilky.
Náhradní nástavec pro podlahové vpusti Chuděj v celoplastovém provedení nebo s nerezovým rámečkem o rozměru 125 x 125 mm.
Kulatý nástavec pro podlahové vpusti Chuděj v celoplastovém provedení pro nerezovou mřížku o průměru 137 mm
Náhradní nástavec pro podlahové vpusti Chuděj v nerezovém provedení o rozměru 150 x 150 mm.
Náhradní nástavec s nerezovým rámečkem a možností volby s celonerezovým povrchem nebo s možností pro zadláždění. Rozměry činí 125 x 125 mm
Náhradní nástavec s nerezovým rámečkem a možností volby s celonerezovým povrchem nebo s možností pro zadláždění. Rozměry činí 150 x 150 mm
Náhradní podstavec pro nástavec 125 s možností volby s celonerezovým povrchem nebo s možností pro zadláždění. Rozměr činí 125 x 125 mm.
Náhradní podstavec pro nástavec 150 s možností volby s celonerezovým povrchem nebo s možností pro zadláždění. Rozměr činí 150 x 150 mm.
Volitelná mřížka 116 x 116 mm pro podlahové vpusti Chuděj z nerezové oceli DIN 1.4301 o síle 1,5 mm pro nástavec 125 × 125 mm.
Kulatá mřížka pro kanalizační a podlahové vpusti Chuděj ze nerezové oceli se třídou zatížení K3.
Plastové sítko na zachytávání nečistot podlahových vpustí Chuděj s nástavcem 125 x 125 a 150 x 150 mm.
Pachový uzávěr z plastu nízký slouží proti zabránění zpětnému šíření zápachu z kanalizace podlahových vpustí Chuděj.
Plastový límec včetně těsnícího kroužku, který slouží pro snadnou montáž hydroizolačních materiálů. Rozměry činí 220 x 220 mm, průměr připojení D 115.
Zajištění límce pro izolaci, které se umisťuje mezi límec a korpus vpusti.
Těsnící o-kroužek pro sprchové žlaby z plastu a podlahové vpusti Chuděj. Rozměry činí 107 x 3,5 mm.

























Hledáte příslušenství k produktům ve vašem košíku?
Je vám k dispozici v této nabídce.
Foto - Vpusť Chuděj PVB 50 L2
Foto - Vpusť Chuděj PVB 50 L2
Foto - Vpusť Chuděj PVB 50 L2
Foto - Vpusť Chuděj PVB 50 L2
Foto - Vpusť Chuděj PVB 50 L2
Foto - Vpusť Chuděj PVB 50 L2
Foto - Vpusť Chuděj PVB 50 L2
Foto - Vpusť Chuděj PVB 50 L2
Foto - Vpusť Chuděj PVB 50 L2
Foto - Vpusť Chuděj PVB 50 L2
Foto - Vpusť Chuděj PVB 50 L2
Foto - Vpusť Chuděj PVB 50 L2
Foto - Vpusť Chuděj PVB 50 L2
Foto - Vpusť Chuděj PVB 50 L2
Foto - Vpusť Chuděj PVB 50 L2
Foto - Vpusť Chuděj PVB 50 L2
Foto - Vpusť Chuděj PVB 50 L2
Foto - Vpusť Chuděj PVB 50 L2
Foto - Vpusť Chuděj PVB 50 L2
Foto - Vpusť Chuděj PVB 50 L2
Foto - Vpusť Chuděj PVB 50 L2
Foto - Vpusť Chuděj PVB 50 L2
Foto - Vpusť Chuděj PVB 50 L2
Foto - Vpusť Chuděj PVB 50 L2
Foto - Vpusť Chuděj PVB 50 L2
Diskuze
Položit otázkuSkrýt